919 Martin St, Clarksville, TN

$5,130,000

Previous Next
  • 29,700

    Square feet

Description of 919 Martin St, Clarksville - MLS# 2980024

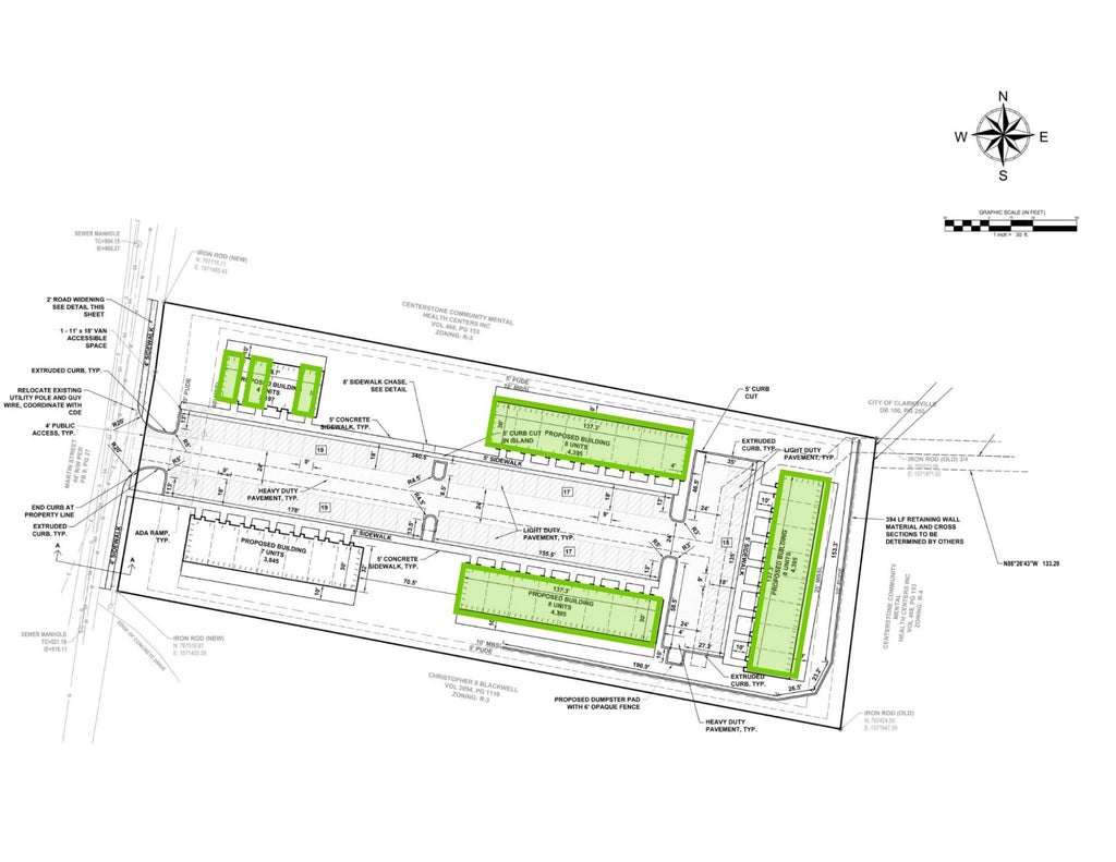
Welcome to Phase Two of Martin Place Townhomes—an exceptional opportunity to acquire a pad-ready, fully approved development site in the heart of Clarksville. This phase consists of 24 units across Buildings B, C, and D, and 3 units in Building A currently cash flowing positioned! Vertical construction can begin immediately, offering investors the ability to capitalize on strong rental demand with minimal delay. Each townhome is designed with modern finishes, including two bedrooms with private en-suite bathrooms, upstairs laundry, granite countertops, stainless steel appliances, and either a deck or patio depending on elevation. The property is zoned to allow short-term rentals, creating flexibility for both traditional leasing strategies and higher-yield rental options. Located just minutes from the revitalized downtown district and the F&M Bank Arena, Phase Two is strategically positioned to benefit from Clarksville’s rapid growth. Rent roll from Phase One (already producing income) is available upon request to support underwriting. Property may be purchased in full or by building, with acceptable terms.

Features of 919 Martin St of 919 Martin St

MLS® # 2980024
Price $5,130,000
Bathrooms 0.00
Square Footage 29,700
Acres 0.00
Year Built 2025
Type Residential Income
Status Active
New Construction Yes

Community Information : Clarksville

Address 919 Martin St
Subdivision Martin Place Townhomes
City Clarksville
County Montgomery County, TN
State TN
Zip Code 37040

Amenities of 919 Martin St

Amenities Sidewalks
Utilities Electricity Available, Water Available
Garages Parking Lot
Is Waterfront No
Has Pool No

Interior of 919 Martin St

Heating Central, Electric, Heat Pump
Cooling Ceiling Fan(s), Central Air, Electric
Fireplace No
# of Stories 2

Exterior of 919 Martin St

Roof Shingle
Construction Brick, Vinyl Siding

School Information of 919 Martin St

Elementary Norman Smith Elementary
Middle Richview Middle
High Clarksville High

Additional Information On 919 Martin St

Date Listed August 22nd, 2025
Days on Market 49
Zoning R-4
Foreclosure No
Short Sale No

Listing Details of 919 Martin St

OfficeKeller Williams Realty Clarksville

Listings courtesy of REALTRACS as distributed by MLS GRID

Listing Map of 919 Martin St

Request a Showing

919 Martin St Clarksville TN 37040 - MLS# 2980024

Provide a valid email address.
When would you like to view this property?